Description de l'offre
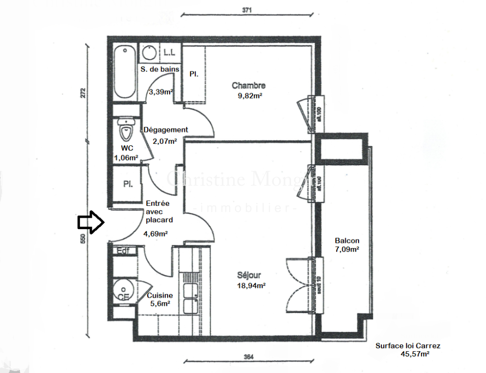
Idéalement situé rue Nadia Guendouz à 2 pas du métro Saint-Ouen (ligne 14) qui permet de rejoindre le centre de Paris (Châtelet en 15mn) et RER Saint-Ouen (ligne C) à proximité du centre commercial Leclerc de Clichy. Nous vous proposons à la vente un appartement de 2 pièces de 46m² , situé dans un immeuble récent de standing sécurisé avec gardien. Cet appartement comprend : une entrée avec placard-penderie, une cuisine américaine aménagée ouverte sur le séjour de 19m² qui lui même donne sur un balcon de 7m² au calme sur jardin de la copropriété, ce deux pièces comprend également une chambre avec placard-penderie, une salle de bains et un wc séparé. Possibilité d'acquérir en sus un emplacement de parking en sous-sol. Copropriété de 90 lots principaux, ce bien représente les 82/10 000èmes des parties communes générales de l'immeuble. Charges courantes annuelles : 1516 € avec eau froide, gardien, ascenseur. Les informations sur les risques auxquels ce bien est exposé sont disponibles sur le site Géorisques : www. georisques. gouv. fr
