Description de l'offre
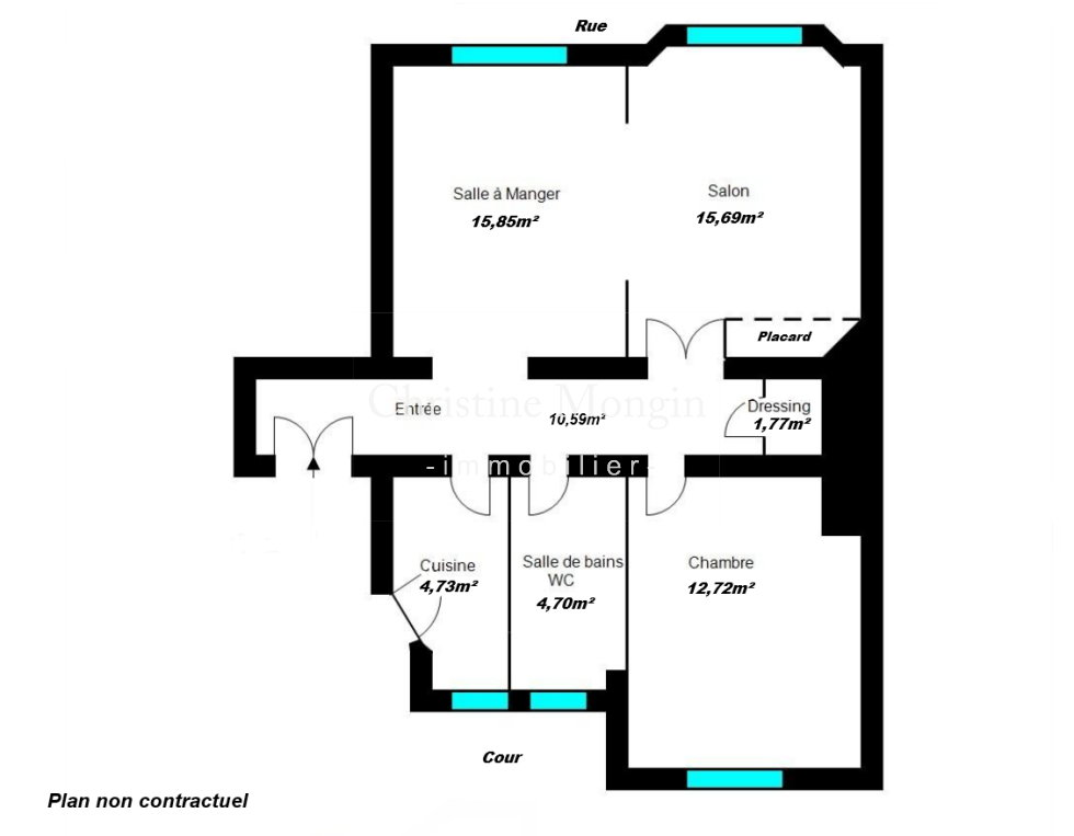
Neuilly-Sur-Seine centre, sectorisation Lycée et Collège Pasteur, à 450m du Métro "Les Sablons" (ligne 1) dans une rue calme proche de l' Avenue du Roule et des commerces, Christine Mongin Immobilier vous propose à la vente dans un bel immeuble "Art-Déco" de 1928 construit par les architectes Maurice Boutterin et Alfred Landes, en étage élevé avec ascenseur, un appartement de 3 Pièces comprenant une entrée-hall, un séjour salle à manger de 31,54m² offrant une vue très dégagée, une chambre de près de 13m² au calme sur cour , un dressing, une salle de bains avec wc, une cuisine séparée aménagée et équipée. Au sous-sol une cave de près de 5m² complète ce bien. Double vitrage , chauffage et eaux collectifs. Rénovation à prévoir. Copropriété de 25 lots principaux. Les informations sur les risques auxquels ce bien est exposé sont disponibles sur le site Géorisques : www. georisques. gouv. fr
