Description de l'offre
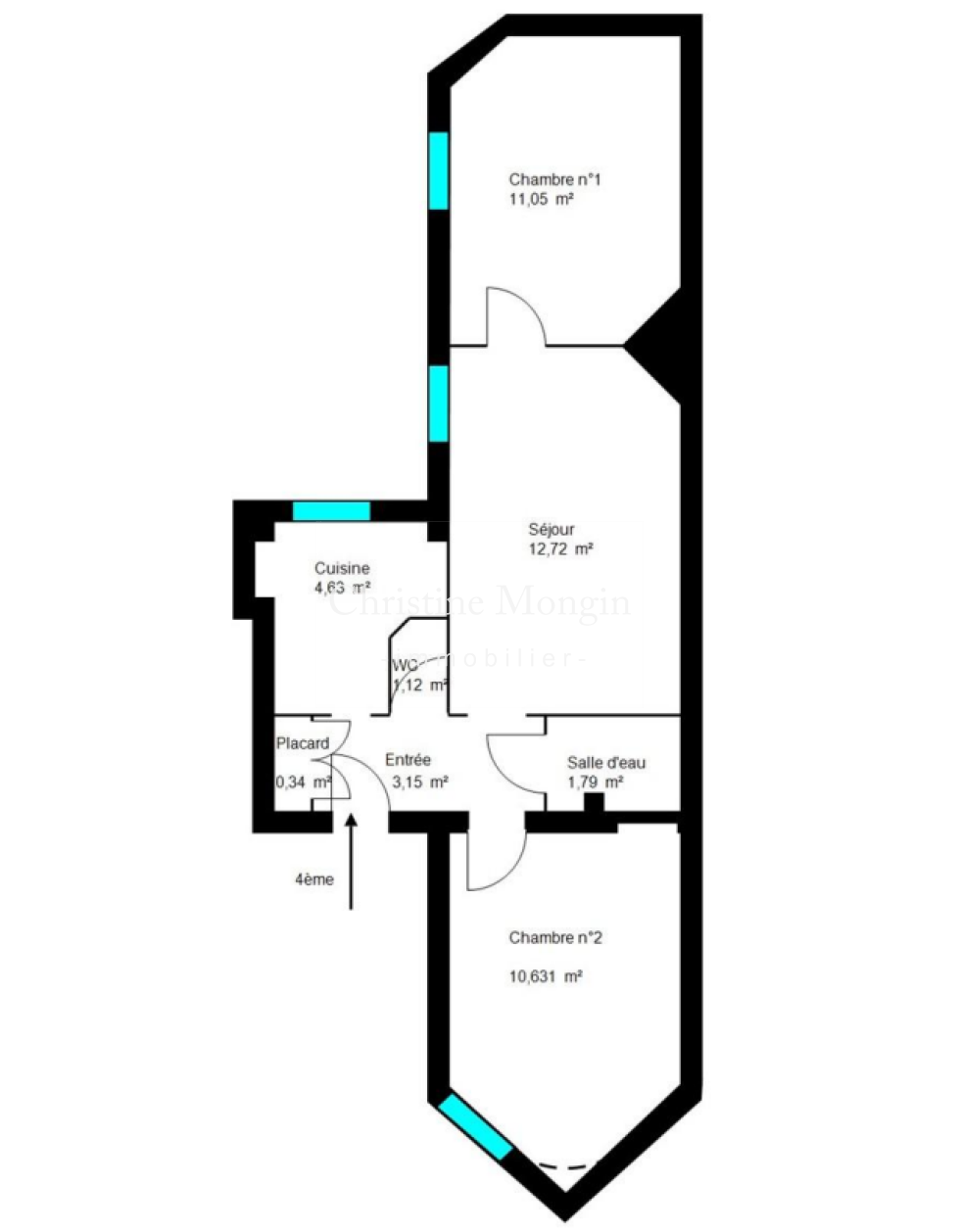
AUTEUIL SUD, rue Boileau, à proximité des stations de Métro Exelmans (ligne 9 à 450m) , Chardon-Lagache (ligne 10 à 400m) ou Michel Ange - Molitor ( lignes 9 et 10 à 400m), dans un immeuble ancien avec une belle façade pierre de taille, nous vous proposons la location vide d'un appartement repeint de 3 pièces au 4ème étage sans ascenseur sur cour comprenant : une entrée, un séjour, deux chambres, une cuisine, une salle de douche, un wc séparé. une cave en sous-sol complète ce bien. Parquet, cheminées décoratives. (Colocations entre étudiants non souhaitées). Honoraires pour un bail résidence principale : 687,35 euros (dont 137,65 euros pour l'état des lieux). Honoraires pour un bail résidence secondaire ou société : 1 480 euros ttc. Dépôt de garantie : 1 423 euros. Les informations sur les risques auxquels ce bien est exposé sont disponibles sur le site Géorisques : www. georisques. gouv. fr Les documents à insérer dans votre dossier de location : La loi ALUR fixe la liste exhaustive des pièces qui peuvent être demandées par le propriétaire ou l'agence immobilière : une pièce d'identité en cours de validité, avec photo et signature ; un justificatif de domicile ; un ou plusieurs documents justifiant d'une activité professionnelle ; un ou plusieurs document attestant des ressources du candidat à la location. Les mêmes documents pourront être demandés pour la personne physique qui se portera caution.Pour les cautions personnes morales, seront demandés en sus, un extrait K bis original de moins de 3 mois (ou autre pièce justifiant l'existence légale de la personne) et un justificatif d'identité du représentant de la personne morale figurant sur le K bis. Établissez donc votre dossier de location complet, avec les éléments mentionnés ci-dessus, en y joignant la photocopie de votre pièce d’identité ainsi que vos dernières quittances de loyer (celles-ci attestent que vous payez votre loyer en temps et en heure et rassureront le propriétaire bailleur). Pour une information plus détaillée, vous pouvez consulter le décret N°2015-1437 du 5 novembre 2015.
